SERVICES

With the right people coming together on your project, everything is possible.

What We Use? Why It Works?

What We Use? Why It Works?

At Bonarch Draft, we use Revit and AutoCAD for all our core drafting and modeling work. These are the platforms where our team operates with the most depth and efficiency, ensuring clean files, fast turnarounds, and reliable integration with your workflows.

We also handle select projects using SketchUp, along with rendering tools like 3ds Max, Blender, and some other software depending on project needs. Most of our staff specialize in one or two programs, so you can count on focused expertise and polished results every time.

Our Specialized team assists you with:
– Feasibility Study
-Programming
-Conceptual Design
-Rezoning
-Master Planning
-Site Plan Approval
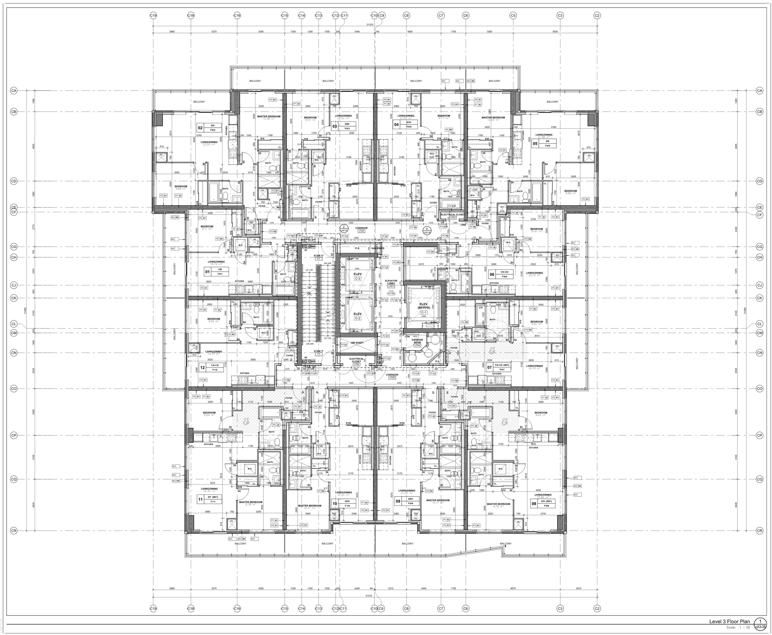
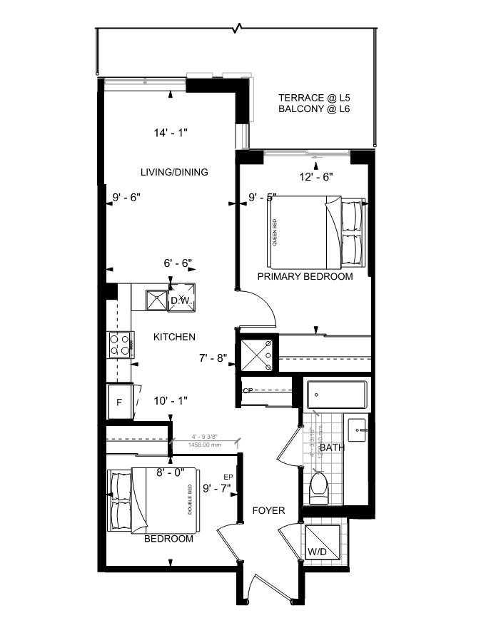
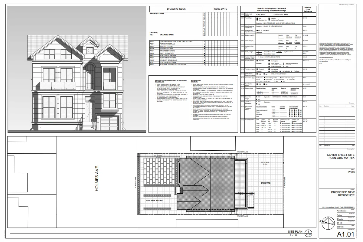
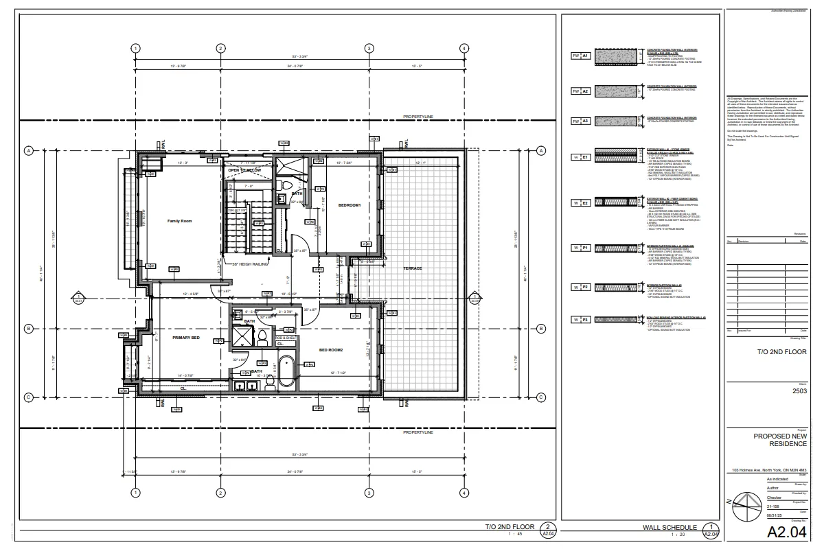
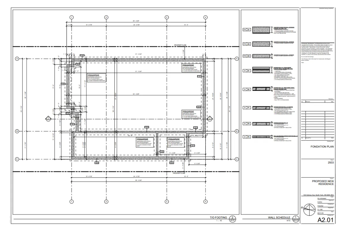
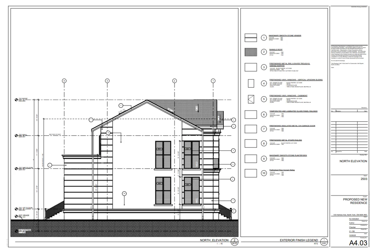
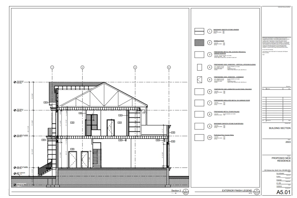
-Construction Documents
-Building Permit and Approvals

How We Support Your Project and your practice:
-Presentation for Client review
-Marketing Drawings
-Urban Design Brief Presentation
-Shadow Study

From Concept to Visual Reality:
-Exterior Realistic Rendering
-Interior Rendering
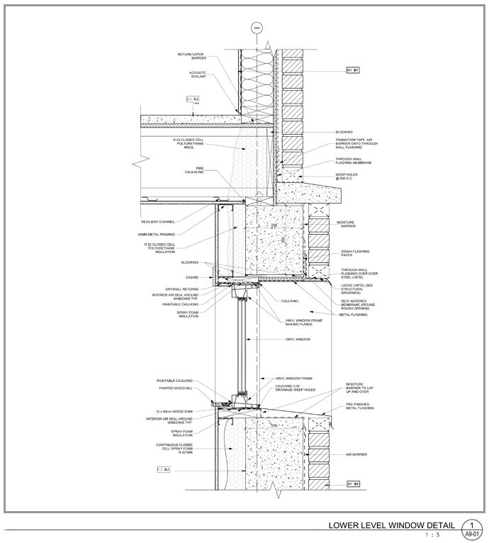
-Detail Rendering